Architects
BWC_Architects_Blog_Tilte-Graphic.png

Blog

Goings on at the BWC Architecture Studio

San Francisco with a view

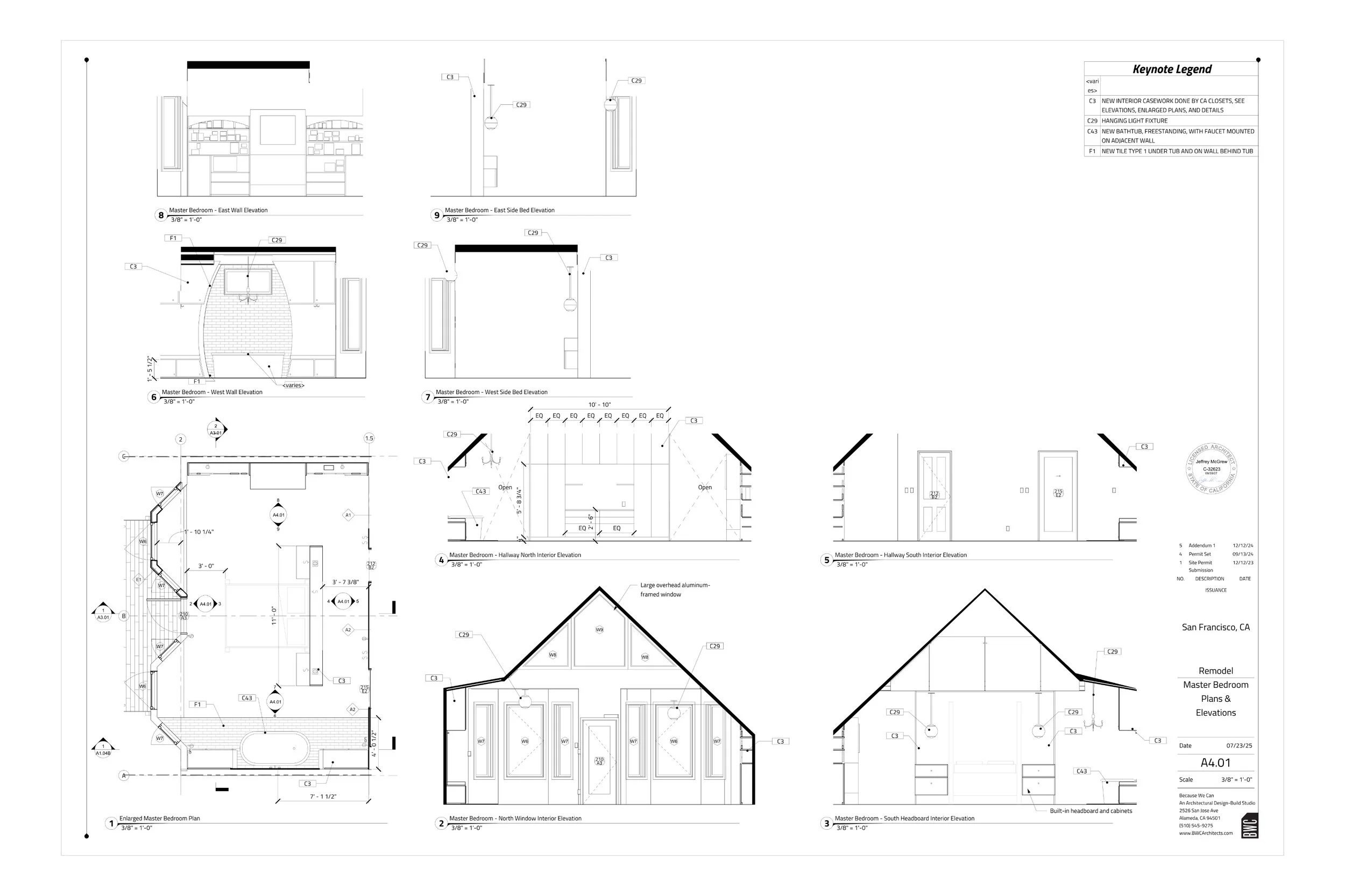
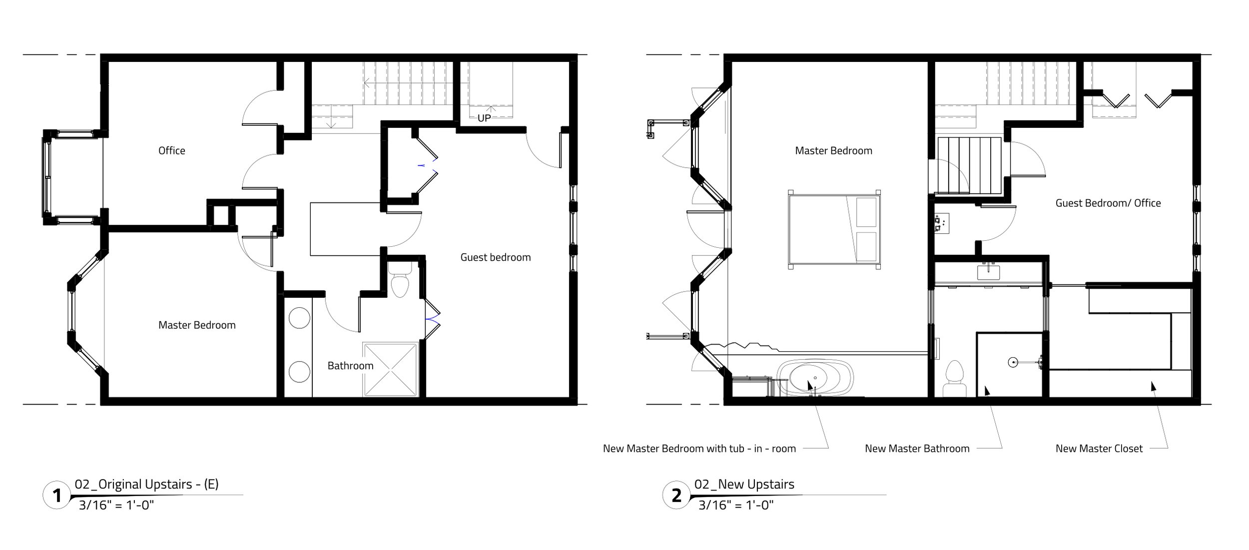
Our latest project, this 1880 San Francisco home with lovely old bones, has been going through some big modifications over the last months. Our design opens up the original floor plan of many small rooms to create a large master bedroom, walk in closet, updated bathroom, office, vaulted ceiling and loft.

Taking into consideration (always) the period of the house and matching the design decisions to what works within the house aesthetic we kept the majority of the house details in tact while creating a large open master bedroom with a vaulted ceiling. The new room and windows capture the breathtaking view from the now master bedroom suite.

We are the architects, designers and also project managers. Staying with you throughout the project. Making sure it all gets done and acting as your rep along the way.

In our design we’ve also opened up the ceiling of the existing attic space, creating one larger magnificent space with a vaulted ceiling. The once two small rooms, facing the back of the property and up on a hill, is now a grand room with an in suite tub and fireplace looking out over all of San Francisco.

Modern building materials and insulation have allowed us to vault the ceiling and add the open upstairs loft to the space without concerns of inside temperature swings. With the 2nd story windows and two skylights in the loft, we’re letting so much natural light into the space now and, of course, optimizing for that amazing view.

Jillian Northrup