Architects
IMG_6679 Edited.jpg

Dramatic Tones Primary Suite

Private residence Architecture, design & construction management of renovation of master bedroom and bathroom. Additional construction management and design included new interior paint and doors throughout the house

Dramatic Tones Primary Suite


【CLIENT】

Private Residence

【PLACE + TIME】

Campbell, CA / 2025-2026

【PROJECT SCOPE / TEAM】

BWC Architects: Primary Bedroom Remodel, Bathroom Redesign, Structural Wall Relocation, Lighting Design, in shower sauna & new interior doors throughout house.

【CUSTOM ELEMENTS】

Interior doors

This South Bay project was a design challenge in layout efficiency. While the overall envelope of the house needed to remain unchanged, the original configuration felt cramped and disconnected. By strategically moving a few key walls, we were able to completely rethink how the suite feels and functions.

Now, the primary bedroom flows naturally into a hallway flanked by a "his and hers" dual closet system—a design move that not only adds storage but creates a dignified threshold before entering the private sanctuary of the bathroom.

The new configuration allowed us to fit a massive shower equipped with a built-in sauna steamer—a client favorite — that turns the daily routine into a wellness ritual. We also integrated a bidet toilet, a towel warmer for those chilly California mornings, and an extra-wide vanity sink cabinet and storage mirror with integrated lighting that provides ample space without crowding the floor plan.

The bathroom was the heart of the transformation. We leaned into a palette of dramatic, moody tones to create a spa-like atmosphere that feels intimate, premium and unique.

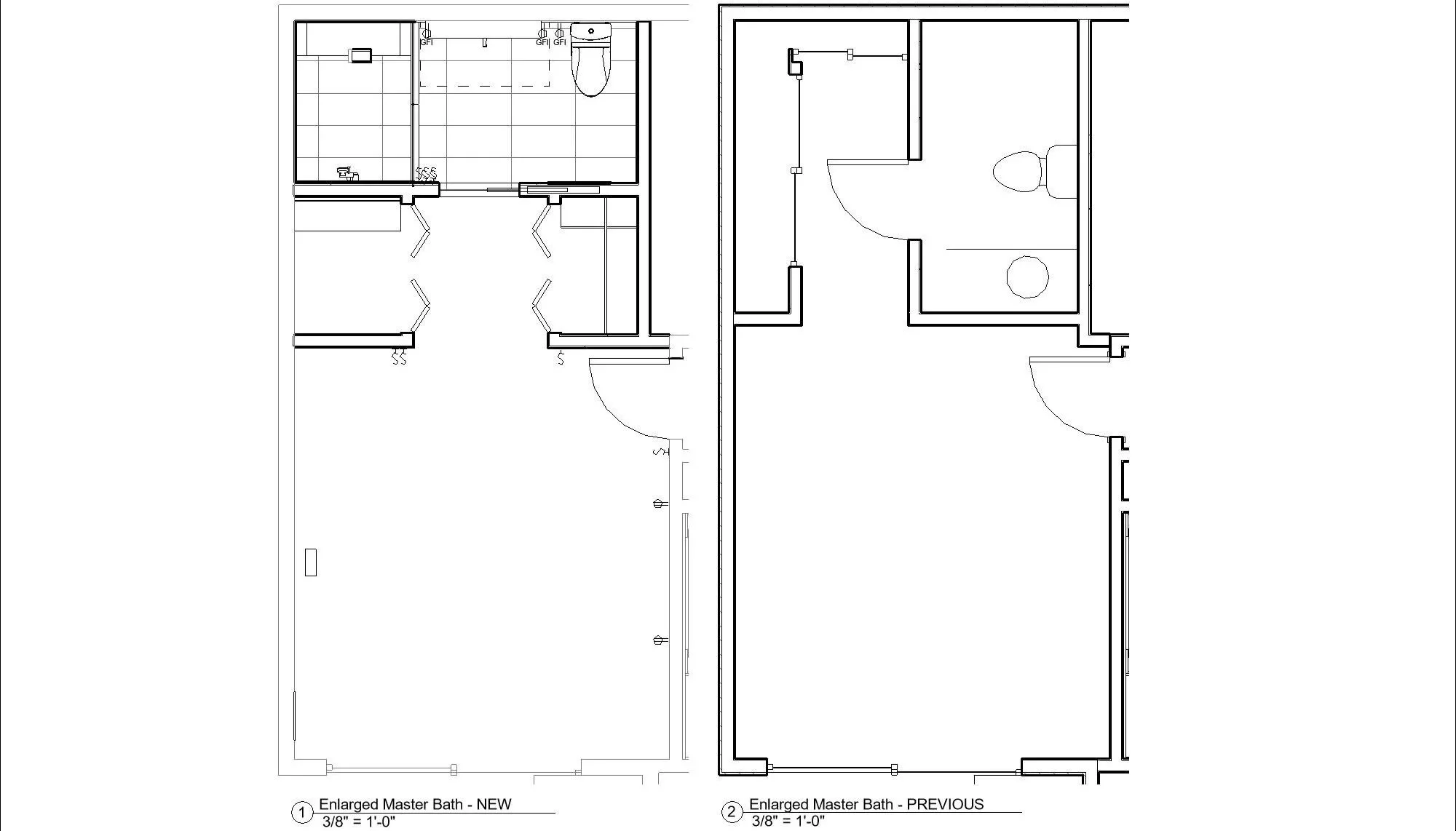
The before and after floor plan studies below show the wall relocation and the creation of the dual-closet hallway. This simple redesign is a huge change in functional efficiency and usable comfort of the space.

New and Previous layouts

Below our final mood board with the chosen set of fixtures, finishes, and products. Once these choices are defined, we review the design drawings and renderings alongside the actual product samples with the client to ensure complete aesthetic alignment.

The final floor to ceiling tile work, glass doors, horizontal drain & sauna steam shower create a luxurious space. The shower is large enough for a bench seat on one end near the sauna controls. The shower head on the other gives the whole space a spa like feel.

In the construction photos below the whole bathroom and closet areas are rough framed with plumbing rough-ins for the specialized sauna steamer system, wall-mounted towel warmer and solar tube in the ceiling. The bedroom side has been taken down to the wallboard for resurfacing.

Working closely with the construction team, we pay weekly visits to the site to answer questions and verify the projects will come out as designed. This close relationship between the architect / designer and the general contractor crew makes for a successful project.

As an added touch we upgraded all the doors throughout the house to solid core hardwood. These two custom doors at the primary suite and the home office were our special added touch

The finished remodel is clean, spacious, more efficient and has cool custom character…..

The room feels so open now and everything looks amazing!
— Client