Architects
IMG_6607 Edited.jpg

Noe Valley with a View

Private residence Architecture, design & construction management of renovation, including entire top floor reconfiguration of bedrooms, office, bathroom & vaulted ceiling into a loft, as well as design and creation of custom elements.

Noe Valley with a View


【CLIENT】

Private Residence

【PLACE + TIME】

San Francisco, CA / 2025-2026

【PROJECT SCOPE / TEAM】

BWC Architects: Architecture, design & construction management of renovation, including entire top floor reconfiguration of bedrooms, office, bathroom & vaulted ceiling into a loft. Design and creation of custom elements.
Deep Elm Construction: General Contractors
Melissa Guerrero Design: Interior Design, tile and color

【CUSTOM ELEMENTS】

Built in woodwork cabinetry around tub and fireplace, Bathroom vanity cabinet. Powder coated steel and stainless cable railing at loft.

Shown above, photos of our redesign of this home from 1905, taken before the furniture was moved in.

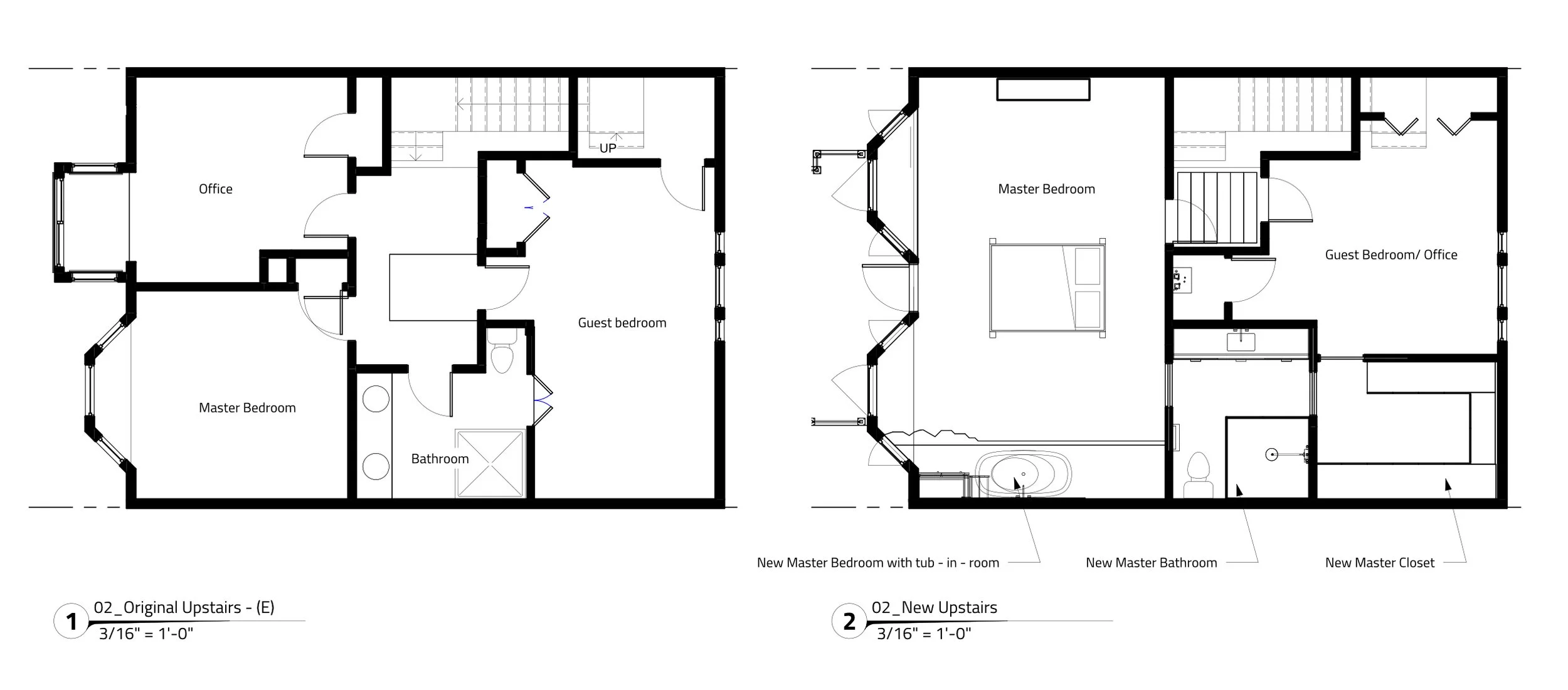
We renovated the existing two small rooms into one large primary suite featuring an expansive view of Noe Valley. The new suite includes an in-room tub, a gas fireplace, and a large deck that opens up to the magnificent scenery.

As shown in our floor plans for the top floor renovation design, the two north-facing rooms with the view have been converted into a single large main suite. The new layout includes a gas fireplace and an in-suite tub.

Above is our conceptual drawings for the new vaulted ceiling. The designs demonstrate how the vaulted structure creates large top opening for additional windows and a new loft space.

By lofting the ceiling within the existing tall, peaked attic space, we were able to open the bedroom for additional windows, maximizing natural light and views. The vaulted ceiling extends the full length of the house past the bedroom, creating a long loft and capturing newly usable space from the previously unused attic.

By expanding the renovation into the attic, we’ve transformed an untapped space into additional usable square footage for the house. By adding skylights to the roof and loft ceiling, we have introduced even more natural light, flooding the space with warmth.

Expanding the design to the outside includes a large deck that maximizes the expansive city views.

By utilizing the existing roof structure, we have created additional usable space. The glass railings we’ve incorporated ensure the view remains unobstructed while providing protection from the wind.

The door adjacent to the in-suite tub opens into the new, spacious main bathroom. The design maximized the original plumbing layout for efficiency, allowing the room to be enlarged with a completely new shower, custom vanity, and clean tile work. Despite the challenge of the sloped ceiling from the peaked roof, the final result is spectacular.

Glass tile in the shower, concrete with aggregate counter top and a custom vanity in the new primary bath. Large opulent fixtures and brass hardware throughout the space bring it all together.

Upon entering the primary bedroom, the custom-designed Fire Clay tile designed by Melissa Guerrero and built-in curved cabinetry (designed by BWC) surrounding the en-suite tub immediately draws the eye, making it a dramatic focal point.

These original concept designs are an excellent for conveying the proposed look of the space to the client. They allow us to initiate discussions about the final finishes, as well as the size and specific details of the custom piece and other elements within the space.

We first collaborated closely with contractors to have the cabinetry custom-built to our specifications, confirming that the quality and appearance met the client's expectations throughout the process. Our role includes creating the fabrication models and drawings, which allows us to direct the fabrication process, manage the installation, and conduct the final review.

We produce comprehensive design and fabrication drawings for our custom elements, alongside the architectural renovation plans. This streamlines the process, enabling efficient collaboration with fabricators to swiftly bring these custom pieces to life.

By serving as construction managers, architects, and designers, we are able to collaborate seamlessly with our fabricators and clients throughout every phase of a project, guaranteeing a flawless and timely result.

The newly refreshed second-floor landing, featuring new paint and carpet on the stairs, provides access to the primary bedroom and an office. Although the office was slightly reconfigured, it still showcases the historic home's original details.

The bathroom details shine with all of its brass hardware. Original doors and doorknobs were thoughtfully preserved and repurposed as pocket doors for both the bathroom and the main walk in closet and as original swing doors in the rest of the space. By retaining these historical elements, the design successfully merges the original character of the house with modern aesthetics.

Deliberate transitions between spaces are fundamental to enhancing a completed project's quality, aesthetic interest, and overall appeal, underscoring that the enjoyment and impact of a space are often rooted in these minute details.

For this project, the spatial flow received meticulous consideration. Key transitions encompassed wood cabinetry, all flooring types, original doors, tile, and room to room visual perspectives. The coordination of color palettes in the tile and flooring, combined with the application of harmonious finishes on all hardware and cabinetry, successfully created a unified ambiance.

Guys, the whole house looks amazing! It’s the dream and it’s real!
— Client